Property #RH21333
New Build Alcalali

Property #RH21333

€ 765.000

3 bedrooms 2 bathrooms 419m² / 1021m² plot
1 / 14
Scroll for more
Alcalali

Property #RH21333

3 bedrooms
2 bathrooms
419m² built
1021m² plot
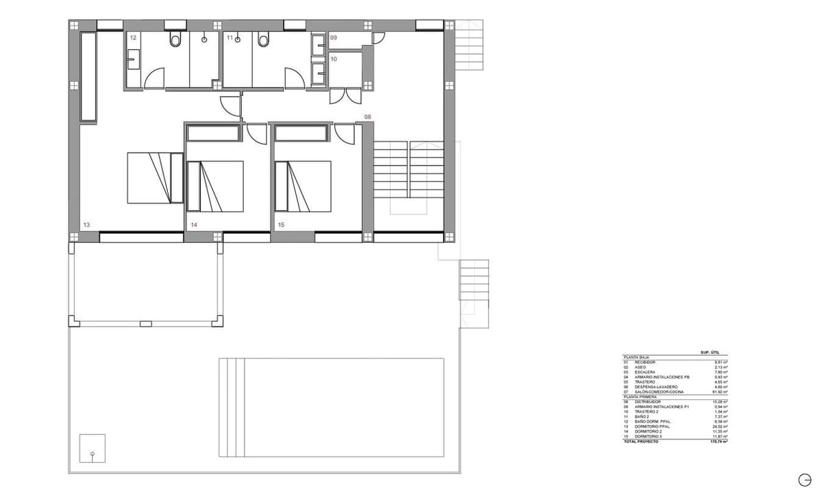
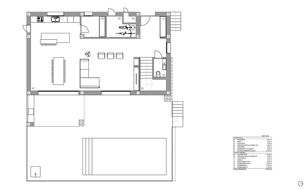
Located in the idyllic village of Alcalalí, this new build project has been granted planning permission. With a planned built area of 211 m2 on a generous plot of 1,021 m2, this project offers the opportunity to build a beautiful Ibiza-style villa in the peaceful, natural surroundings of the Jalón Valley.~~The project envisages a villa that will be built over two floors. On the ground floor, a spacious living-dining room is planned with an open kitchen equipped with a cooking island, complemented by a pantry, storage space and a guest toilet. The upper floor is designed with three comfortable bedrooms and two stylishly designed bathrooms that combine functionality and aesthetics, one of which is en-suite. The layout of the project has been carefully designed to ensure optimal use of space and to create a natural flow between the different living areas.~~In addition, the private garden has been designed to allow you to enjoy the outdoors and nature in complete privacy, as well as two terraces where you can experience the Mediterranean climate all year round.~~There is also an 8 x 4 metre swimming pool, ideal for cooling off during the hot summer months. The outdoor areas will consist of both an open terrace and a covered terrace, so there is always a choice between sun and shade. The plot will be fully fenced, ensuring security and peace of mind, while good connections to nearby main roads guarantee easy access to local amenities and attractions.~~The villa will be equipped with air conditioning for heating and cooling via air ducts, creating a pleasant indoor climate in every room, regardless of the season. Double glazing, automatic shutters in the bedrooms and the provision of parking and storage space contribute to additional living comfort.~~This project represents not only the realisation of a home, but a lifestyle in which tranquillity, comfort and modern luxury come together in charming Alcalalí. With its contemporary architecture and thoughtful amenities, this project is an invitation to enjoy an exceptional living environment every day, where time seems to stand still.
Energy
Certification
Scale
Consumption
kWh/m²year
Emissions kg
CO₂/m²year
A
< 30
< 7
B
30-50
7-12
C
50-90
12-20
D
90-140
20-30
E
140-200
30-42
F
200-265
42-56
G
> 265
> 56
In Process

Based on Real Decreto 390/2021 (BOE-A-2021-9176)

Location

Asking price € 765.000
Reference RH21333
Type Villa
Built area 419m²
Plot 1021m²

Features

Terrace
Garden
community pool
air-conditioning

Share